20 horas
Suporte para dúvidas
Certificado Incluso
Este curso foi criado para eliminar a insegurança de quem recebe um projeto estrutural e precisa executá-lo ou conferi-lo. Vamos do básico ao avançado em simbologia e detalhamento.
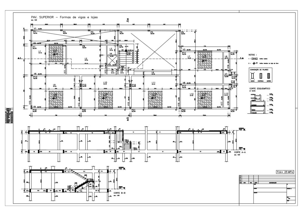
Utilizamos projetos reais como base de estudo, permitindo que você visualize na prática cada elemento descrito nas normas brasileiras de desenho técnico e estruturas.
Engenheiros que querem querem aprender a interpretar projetos reais de obra, indo além da teoria e desenvolvendo visão prática de mercado.
Estudante que desejam ganhar segurança técnica para analisar projetos estruturais, conferir detalhamentos e atuar com mais confiança em obras, escritórios de cálculo ou compatibilização.
Profissionais que precisam interpretar corretamente plantas estruturais, armaduras e fundações para evitar erros de execução e retrabalho no canteiro.
Engenheiros e tecnólogos que querem ampliar sua atuação profissional, desenvolvendo capacidade de leitura crítica de projetos estruturais para fiscalização, vistoria e compatibilização.
MELHOR CUSTO-BENEFÍCIO
Acesso por 1 ano
Acesso Mensal
Garantia de 15 dias
Material de Apoio Incluso
Com mais de 15 anos de experiência e mais de 200.000 m² projetados, Renato Luna atua diariamente com o software TQS em projetos residenciais de alto padrão e edifícios multipavimentos.
Mestre em Engenharia de Estruturas pela UFRJ, decidiu criar este curso para mostrar o que os manuais do software não ensinam: a vivência de projeto e as soluções para os problemas do dia a dia.
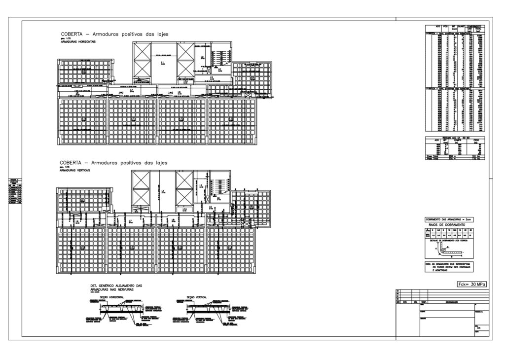
Aprenda a ler armaduras de sapatas, vigas, pilares e lajes, compreendendo bitolas, espaçamentos, ancoragens e variações de seção, para acompanhar a execução com segurança e autoridade técnica.
Nossos treinamentos são práticos utilizando projetos reais
R$ 69,00 /mês
MELHOR CUSTO-BENEFÍCIO
R$ 497,00
PIX
CARTÃO EM ATÉ 12X
BOLETO
Domine o software mais usado nos escritórios de cálculo do Brasil. Aprenda desde o lançamento da estrutura até a geração das pranchas finais.
Se você se matricular no treinamento da Escola de Estruturas e em 15 dias achar que não teve nenhuma evolução ou que o curso não é para você, é só mandar um e-mail e devolvemos todo o seu investimento integral do curso, sem perguntas, sem ressentimentos… simples assim.
Tire suas dúvidas sobre nossa metodologia e funcionamento.
Formando engenheiros completos para o mercado de trabalho. Do software à teoria, aprenda com quem projeta na prática.